PASLAUGOS
Siūlau baldų vizualizacijos, dizaino ir projektavimo brėžinių paslaugas - nuo pirmos idėjos iki galutinės kliento vizijos
Vizualizacija
Vizualizacija leidžia pamatyti galutinį rezultatą dar prieš pradedant darbus.
Taip atrodo 3D fotorealistinė vizualizacija.


Vizualizacijos maketas
Taip atrodo vizualizacijos maketas. Nebūtina daryti 3D fotorealistinę nuotrauką (pavyzdys aukščiau).


Preliminarūs matmenys, labai minimalus aprašymas. Tai bendra trumpa informacija klientui įsivertinti savo viziją.
Dizaino brėžinys


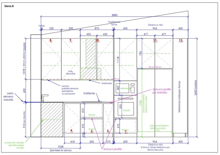
Projektavimo brėžinys
Projektavimo brėžinys
Brėžinys ruošiamas baldų gamybai (šis etapas dar be detalių sąrašo).
Reikia TIKSLIŲ matmenų.
tikslūs matmenys
išsamūs aprašymai
durelių atidarymo kryptys


KAINOS
Kiekvienas projektas yra unikalus – baldų dydis, sudėtingumas ir reikalingos paslaugos skiriasi.
Kainos: vizualizacija nuo 40€ už baldą/patalpą, projektavimo brėžinys nuo 20€ už bėginį metrą.
Norint sužinoti preliminarią kainą, prašau atsiųsti:
ranka ar programėle pieštą eskizą su preliminariais gabaritiniais matmenimis
keletą savo idėjų
kokių paslaugų norite (pvz., tik vizualizacija, ar pilnas brėžinys)
📩 Gavusi informaciją, atsakysiu su individualiu pasiūlymu.
O JEI NESATE TIKRI, KURIOS PASLAUGOS JUMS REIKIA, PO KONSULTACIJOS PADĖSIU IŠSIRINKTI JUMS PALANKIAUSIĄ VARIANTĄ.
Darbo trukmė priklauso ir nuo jūsų komunikacijos, kaip greitai atsakoma į man kilusius klausimus. Įprasta darbo trukmė 1-3 d.d.
Reikalingas avansas arba pilnas apmokėjimas (priklausomai nuo sumos dydžio).